
INTERVENTION : Réaménagement intérieur d’un RDC de 50m²
LOCALISATION : Monts d’Ardèche (07), Chapus
ANNÉE : 2025
MOA : Privée
PHASE : Esquisse
Le projet se concentre autour d’une petite maison perchée à flanc de colline, au cœur des monts d’Ardèche. Le client a débuté lui-même les travaux de restauration et souhaite réinvestir l’espace sous-combles afin d’y accueillir une grande chambre-dortoir.
L’objectif a été ici de repenser l’intégralité du rez-de-chaussée pour créer de espaces de vie plus généreux et intégrer un escalier menant à l’étage. De plus, une grande terrasse a été imaginée dans le prolongement de la cuisine et qui offre une vue dégagée sur la vallée en face.
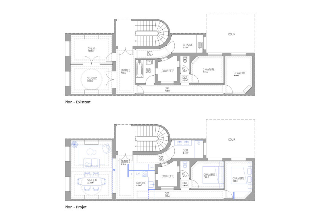
INTERVENTION : Réaménagement intérieur d’un appartement
LOCALISATION : Quartier de la Madeleine,
75008 Paris
ANNÉE : 2025
MOA : Privée
PHASE : Esquisse
Cet appartement se situe à l’étage noble d’un immeuble du début du XIXe siècle, fortement remanié au XXe siècle. Les clients souhaitaient décloisonner au maximum les pièces et rapprocher la cuisine des espaces de vie.
L’idée a été d’intervertir la salle de bain et la cuisine, en retravaillant une nouvelle séquence d’entrée avec des rangements. Une grande ouverture entre le séjour et la nouvelle cuisine a permis une meilleure circulation entre les espaces et un nouvel apport de lumière au centre de l’appartement.


INTERVENTION : Projet de Fin d’Étude
LOCALISATION : Village de Goussainville, 95190 Val-d’Oise
ANNÉE : 2020
Par Laure AYAT-ANDRES & Raphaël SIMOES CHRETIEN :
Des avions, un village pas si fantôme que ça et des champs de possible, voilà comment nous est apparu pour la première fois le Vieux-Pays de Goussainville.
Notre démarche s’est construite autour de la nuisance sonore, comme une évidence face à la présence de l’aéroport de Roissy à la sortie du village. Nous avons développé des stratégies à l’échelle du bâti pour atténuer le bruit des avions, grâce à de grandes couvertures en verre acoustique réemployé et une isolation en paille. Cette démarche interroge donc le rapport au ciel, mais aussi le rapport à la terre et aux matériaux locaux. Et tout cela nous a permis de questionner la notion de ruine et ce qu’elle évoque ici à Goussainville.
Ainsi, nous avons accepté les choses comme elles sont et nous faisons projet avec ce qui est déjà présent et disponible. Nous avons imaginé des interventions ponctuelles et précises dans le village, qui, si elles ne semblent pas avoir de connexion de prime abord, sont liées à la fois par leur langage architectural et par leur sens et leur impact, comme une maille venant réinsuffler la vie au cœur du village de Goussainville.