
INTERVENTION : Réhabilitation des anciennes écuries du domaine royal de Saint-Cloud
LOCALISATION : Écuries Malaquais, 3 avenue du Palais, 92210 Saint-Cloud
ANNÉE : 2019
MOE : De Jean & Marin Architectes / MOA : Immobilière 3F
PHASE : Étude de faisabilité
La réhabilitation des anciennes écuries du domaine royal de Saint-Cloud, bâtiment classé Monument Historique, consistait en la création de vingt-sept logements sociaux dans un contexte urbain dense et complexe, à proximité de l’autoroute.
Différentes typologies sont nées des contraintes de l’existant (comme des T1 en mezzanine au rez-de-chaussée, grâce à la hauteur sous plafond). Une réflexion sur les typologies, la standardisation et la clarté du plan ont guidé le travail de conception, de même que la mise en valeur des éléments patrimoniaux.
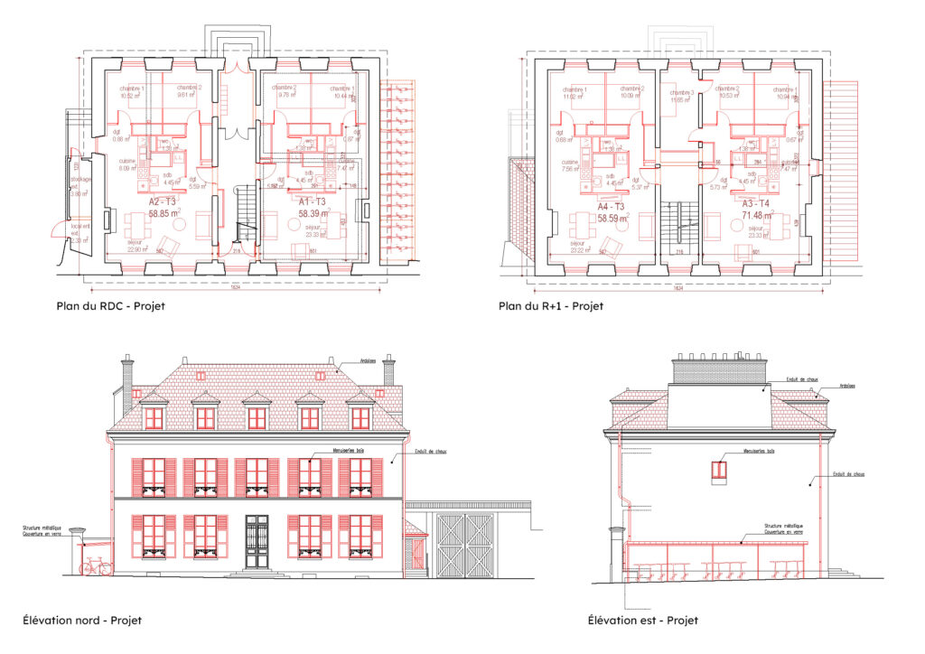
INTERVENTION : Réhabilitation de l’ancienne brasserie de Rambouillet et ses annexes
LOCALISATION : Ancienne brasserie de Rambouillet, 44 rue de Malte, 78120 Rambouillet
ANNÉE : 2020
MOE : De Jean & Marin Architectes / MOA : Immobilière 3F
PHASE : Livré en 2025
Ce projet de réhabilitation, remporté en 2019 dans le cadre du programme «Action cœur de ville», se situe dans le centre-ville de Rambouillet. Un complément d’étude historique a mis au jour des plans datant de la fin du XVIIIe siècle. Une brasserie occupait le site, avec une maison de maître et trois grands corps de bâtiments d’exploitation, encerclant une cour. Le site du projet fait face au parc du château et se développe entre rue et cœur de parcelle. Le projet comprend la réhabilitation de deux bâtiments (XVIIIe et XIXe) et un programme de construction (avec démolition d’un existant), afin de créer 34 logements sociaux. Dans le bâtiment principal, nous avons développé des typologies de logements traversants s’articulant autour d’un noyau technique central.


INTERVENTION : Étude de diagnostic et mise en sécurité du château de Beaurepaire
LOCALISATION : Château de Beaurepaire, 60700 Beaurepaire
ANNÉE : 2025
MOE : Agence Point 05 / MOA : Privée
PHASE : Diagnostic du clos-couvert
Le château de Beaurepaire, inscrit au titre des Monuments Historiques, est fondé au XIIIe. Si aujourd’hui très peu de vestiges subsistent de cette époque, on observe encore des éléments du XVe et XVIe siècle. Toutefois, son état actuel reflète les profondes transformations que le château a subi au XIXe siècle. Notre diagnostic avait pour objectif de dresser un état sanitaire exhaustif du clos-couvert, ainsi qu’une analyse historique permettant de comprendre l’évolution architecturale de l’ensemble bâti. Cela afin d’établir un programme de travaux concis et pertinent et préparer une future campagne de restauration.